196
Kapitel 21
Schaltungen
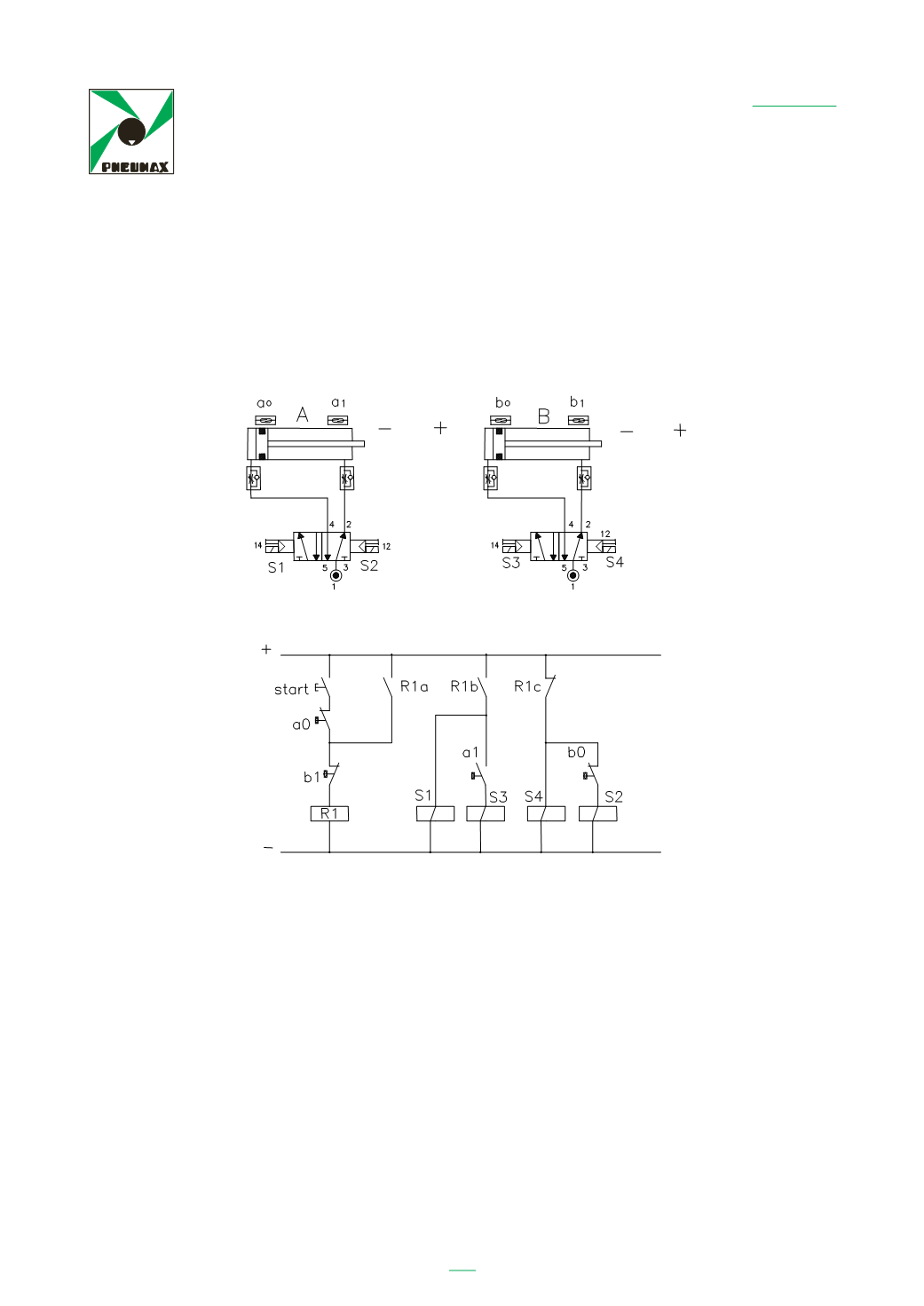
Das Prinzip der Selbsthaltefunktion wird in der Abbildung verdeutlicht. Beim Drücken
von START wird die Spule des Relais R1 erregt; sie aktiviert einen parallel zum Start-
taster geschalteten Kontakt und versorgt sich selbst mit Strom. Beim Loslassen von
START fällt der Kontakt von R1 ab.
Nach diesem Prinzip können die Wechselkontakte des Relais verwendet werden, um
so die in der pneumatischen Version beschriebene Selektion zu realisieren. Die Signal-
selektion erfolgt über dieselben Endschalter b1 und a0, die hier anstelle eines pneuma-
tischen Signals ein elektrisches Signal ausgeben.
Das Startsignal erregt über die in Reihe geschalteten a0 (NO) und b1 (NC) das Relais
R1, dass sich mithilfe des Kontakts R1a selbst mit Strom versorgt.
Gleichzeitig aktiviert es die Wechselkontakte R1b und R1a. Die Spule S1 wird aktiviert
und schaltet das entsprechende Magnetventil, das befiehlt, dass Zylinder A in Stel-
lung + fährt. Der Endschalter a0 wird losgelassen, doch das Relais R1 hält sich durch
den Kontakt R1a selbst aktiv. Nach Vollendung seines Hubs aktiviert Zylinder A den
Endschalter a1, der über den geschlossenen Kontakt R1b versorgt wird und die Spule
S3 erregt. Zylinder B fährt in Richtung Plusstellung. Nach Erreichen dieser Stellung
aktiviert er den Endschalter b1, der den Kontakt öffnet und zum Abfallen von Relais
R1 führt. Die Wechselkontakte R1b und R1a kehren in ihre Ruhestellung zurück, und die
Spule S4 befiehlt Zylinder B, wieder in die Minusstellung zurückzufahren, um erneut
b0 zu aktivieren. Die Erregung der Spule S2 bringt Zylinder A wieder zurück in die
Minusstellung.
Wenn Start gedrückt geblieben ist, startet der Zyklus nach Aktivieren von a0 von neu-
em; andernfalls wird er solange angehalten, bis ein neuer Startbefehl erfolgt.
Lo schema mostra il sistema di autoritenuta. Quando START viene premuto, la
bobina del relè R1 viene eccitata, attiva un proprio contatto in parallelo al pulsante di
partenza, e si autoalimenta. Quando SART viene rilasciato, la continuità è mantenuta
dal contatto. Il contatto di R1 cadrà quando verrà premuto il pulsante di STOP.
Con questo sistema possiamo utilizzare i contatti di scambio del relè e realizzare il
“ selettore “ come visto nella versione pneumatica. La selezione dei segnali sarà
effettuata dai medesimi fine corsa b
1
ed a
0
che anziché liberare un segnale
pneumatico lib ano un segnale elettrico.
Il segnale di Start, attraverso la serie di a0 ( N.A.) e b1 ( N.C.) , eccita il relè R1 che
si autoritiene tramite il contatto R1a.
240
Lo schem mostra il sistema di autoritenuta. Quando START viene premuto, la
bobina del relè R1 viene eccitata, attiv un proprio contatto in parallelo al pulsant di
partenza, e si aut alimenta. Quando SART viene rilas iato, la conti uità è mantenuta
dal con atto. Il contatto di R1 cadrà quando verrà premuto il pulsante di STOP.
Con q esto sistema possiamo utilizzare contatti di scambio del relè e realizzare il
“ selettore “ come visto nella versione pneumatica. La selezione dei segnali sarà
effettuata dai medesimi fine corsa b
1
ed a
0
che anziché liberare un segnale
pneum tico lib rano un seg al elettrico.
Il segnale di S art, ttraverso la seri di a0 ( N.A.) e b1 ( N.C.) , eccita i relè R1 che
si autoritiene tramite il contatto R1a.
240




